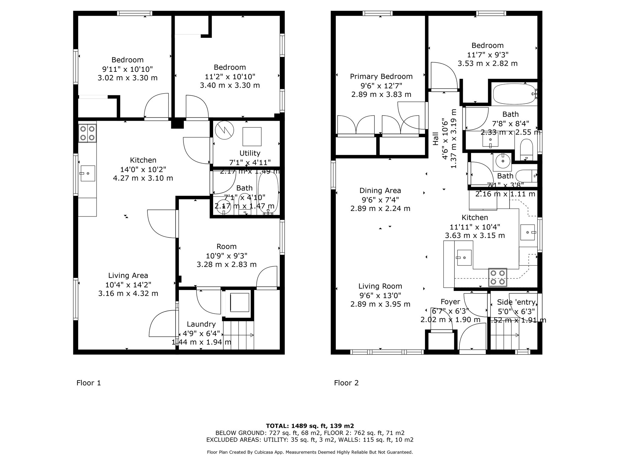
101 McAllister Rd Toronto
Toggle Navigation
Images
Floor Plans
3D Tour
Map
Previous Photo
Next Photo
Images
Slideshow
Photo Grid
Hide
Previous
Next
Show more
Floor Plans
All Floors
Main Floor
Lower Floor
Slideshow
Photo Grid
Hide
Previous
Next
3D Tour