1080 Wildrose Crescent Pickering
Toggle Navigation
Videos
Images
Floor Plans
Map
Images
Slideshow
Photo Grid
Hide
Previous
Next
Show more
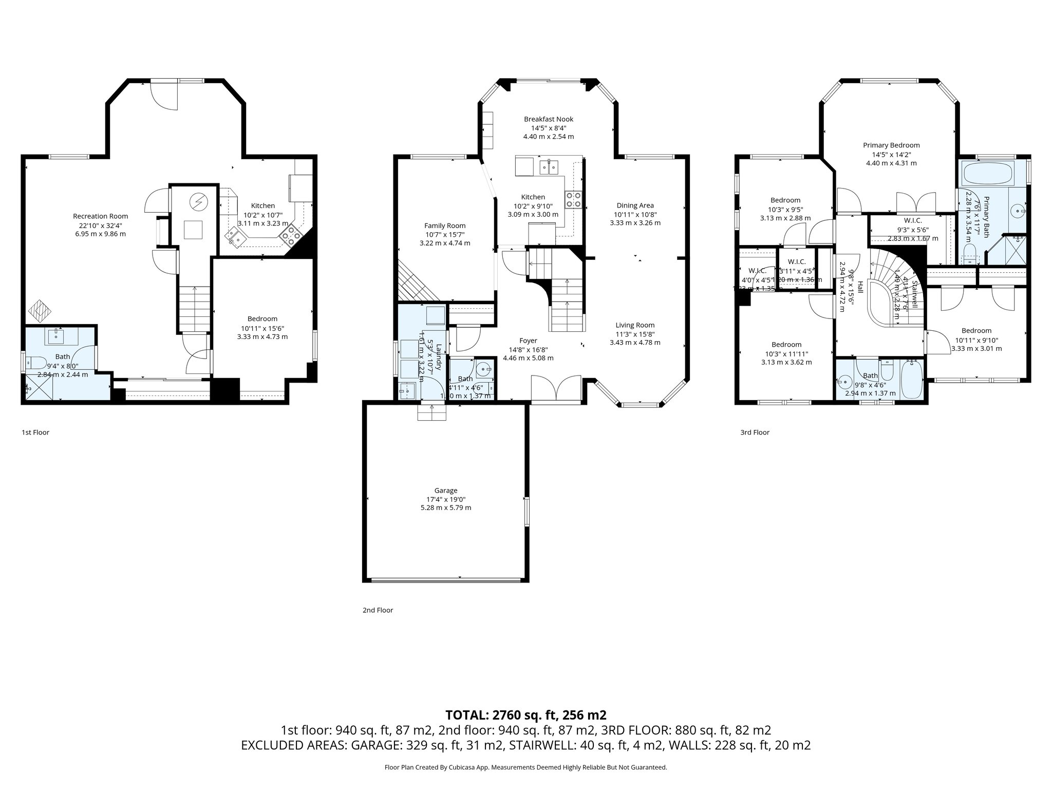
Floor Plans
All Floors
Main Floor
2nd Floor
Lower Floor
Slideshow
Photo Grid
Hide
Previous
Next
Interactive Floor Plan